| FLOOR | ROOM | LIVING AREA |
Building
SAINT GAUDENS (31800)
- 215 m²
- N/A room(s)
- N/A bedroom(s)
- 180 m²
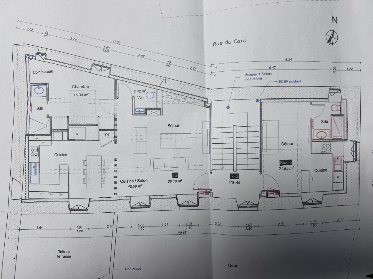
Building with private parking in the city center. This building to be restored as you wish from the structural work, is a very good base for work: sound structure, new roofing and zinc work. In its current state, this building includes: on the garden level: a T2 in BEG, duplex, rentable as is; a shared main entrance; a shed. on the ground floor: a T2 apartment in its own juice currently rented and which will be vacated on 01/01/2025. On the ground floor: a room of approximately 21 m² and a rough floor of approximately 66 m² On the ground floor: attic partly convertible. Potential for 3 T2 and 1 T1. Renovation eligible for the De Normandie scheme: study and architect's plans provided. Possibility of creating 5 lots plus cellars with parking within the property.
Our Fee Schedule
* Agency fee : Agency fee included in the price and paid by seller.
this offer to a friend
Please try again


















